Мы рады представить трехкомнатную квартиру в новом проекте - жилом комплексе в квартале Изгрев в городе Бургас.
Жилой комплекс расположен в метрах от торгового центра PLAZA и гипермаркета KAUFLAND.
Проект включает в себя 5 жилых домов, 3 из которох уже полностью построены и введены в эксплуатацию, включающих коммерческие помещения, гаражи и открытые парковочные места.
Концепция комплекса заключается в создании уютной и экологически чистой среды обитания.
На огромной территории для удобства жителей предусмотрены:
- магазины;
- бистро с крытой и открытой частью;
- детская площадка рядом с ним;
- многофункциональная детская площадка;
- богато благоустроенный парк с беседками и
- зона для выгула домашних животных.
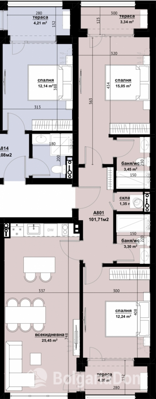
Квартира расположена на 8 этаже 9-этажного здания, восток-запад, площадь 101,71 кв.м.
БЕЗ ПЛАТЫ ЗА ОБСЛУЖИВАНИЕ!
Срок выполнения - 2028 год.





















